Kleingartenhaus S

2006

KONZEPT

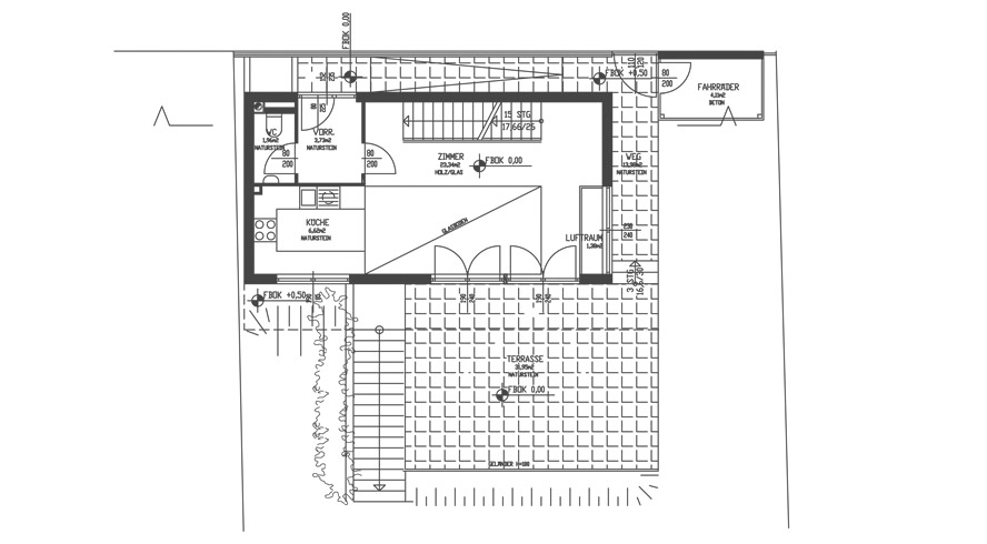
Ein Kleingartenhaus im 16 Bezirk fügt sich elgant in den Bestand ein. Die dem Wohnraum vorgelagerte Terrasse schafft einerseits eine großzügige Verbindung mit dem Aussenraum, auf der anderen Seite ist sie Dach des erweiterten Kellers, der dieses Kleingartenhaus zu einem Raumwunder werden lässt.

FAKTEN

Grundstücksfläche: 500m2
Bebaute Fläche: 45m2


  • StraubArch PR Haus S Ans01
  • StraubArch PR Haus S Ans02
  • StraubArch PR Haus S Ans03
  • StraubArch PR Haus S Gr01
Copyright © 2010 STRAUB ARCHITEKTUR . alle Rechte vorbehalten impressum
project_rp3